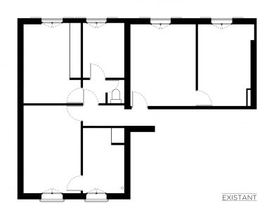
Appartement V

10
  • Lieu
    Paris 14
  • Maître d’ouvrage
    Privé
  • Surface
    75 m2
  • Programme
    Restructuration de 3 studios en 1 logement familiale
  • Budget
    0.1 M€
  • Statut
    Livré, 2020
Appartement V
Appartement V
Appartement V
Appartement V
Appartement V